Projet Peltier
Client
Particuliers
Surface
75 m2
Type de projet :
Rénovation totale du RDC d’une maison à Nantes.
Mission complète d’architecture intérieure :
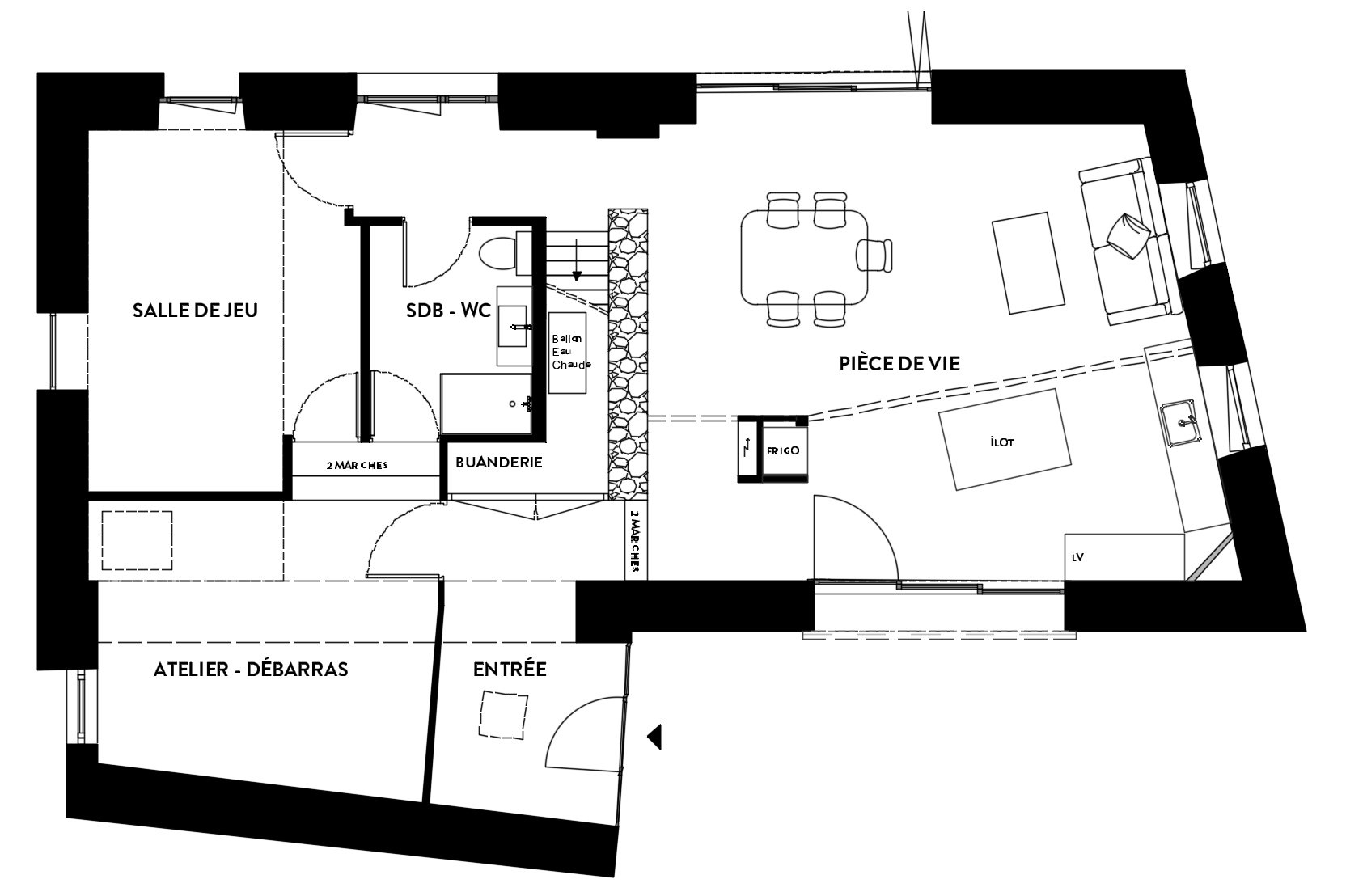
L’objectif était de ré-agencer le RDC afin d’optimiser la circulation et de rénover les différents espaces (entrée, pièce de vie, buanderie, chambre parentale avec salle d’eau attenante).
Vue 3D à 360° (cliquez sur le projet) : Projet Peltier
Le projet en quelques mots
Les objectifs étaient les suivants :
Avant tout, repenser la circulation entre les différents espaces : condamner l’accès entre l’atelier et la future chambre parentale, séparer les WC de la salle d’eau afin d’ouvrir celle-ci sur la chambre parentale
Concevoir une nouvelle cuisine élégante et fonctionnelle sur toute la largeur de la pièce afin d’installer un vrai salon ouvert sur le jardin, créer une chambre parentale avec salle d’eau attenante et concevoir un atelier / buanderie avec des rangements intégrés
Concevoir divers agencements intérieurs (bureau d’appoint, dressing, dressing entrée…)
Proposer des choix de couleurs, de matériaux, d’équipements sanitaires et des revêtements pour les murs et les sols
PLAN EXISTANT
PLAN PROJETÉ
Projections 3D
Quelques photos AVANT…
Projections 3D
Projections 3D

